Nuove Realizzazioni
Chalets
Ville
Appartamenti
Case
 
Altre Proposte
Alloggi Ristrutturati
Affitti
Photogallery Lavori
 
Usato Occasioni
Monolocali
Bilocali
Trilocali
Rustici
Ville

 

 

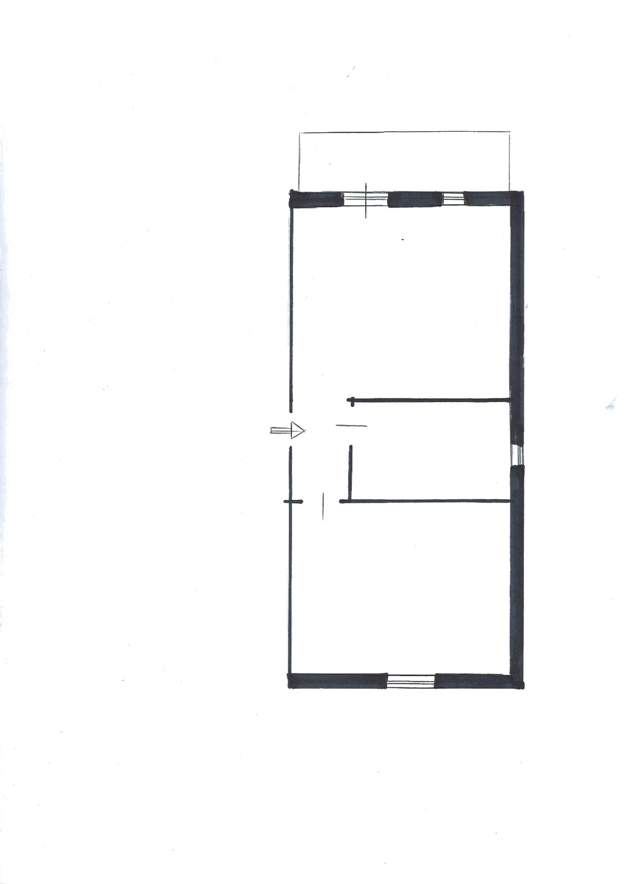
Bilocale vicino al centro

In piccola palazzina in mezzo a verde, vicino al centro, alloggio mansardato composto: ingresso-soggiorno, cucinino, camera, bagno, ripostiglio, balcone, cantinetta, giardino condominiale e parcheggio. Esposizione molto bella e soleggiata. Alloggio con caminetto e completamente arredato.

 

28.000 euro



Richiedi ulteriori informazioni >>

 
  
 
  
 
  
 
Richiesta informazioni
Ti interessano ulteriori informazioni riguardo questo immobile? Invia senza impegno il sottostante modulo e verrai presto contattato dalla nostra organizzazione.
cognome e nome
 
città di residenza
 
telefono
 
indirizzo e-mail
 
messaggio
 
 
INFORMATIVA AI SENSI DEL DECRETO LEGISLATIVO 196/2003
Ai sensi dell'articolo 13 del Decreto Legislativo 196 del 30 Giugno 2003, Vi comunichiamo che i vostri dati anagrafici saranno utilizzati per le attività connesse all'attività della nostra azienda e per l'invio di materiale pubblicitario e/o cataloghi. In qualsiasi momento potrete fare valere i vostri diritti, come previsto dall'articolo 7 del decreto legge de quo, rivolgendovi a GALLIANO COSTRUZIONI - via Sant'Anna 55 - 12080 San Giacomo di Roburent (Cn).

INFORMATIVA AI SENSI DEL DECRETO LEGISLATIVO 196/2003
Ricevuta l'informativa di cui all'articolo 13 e preso atto dei diritti di cui all'articolo 7 del Decreto Legge 196/2003, esprimo il mio consenso al trattamento, da parte della GALLIANO COSTRUZIONI , dei dati anagrafici a me relativi per le finalità sopra riportate.
 

 
 
 

Chalets di Montagna >>

Alloggi San Giacomo di Roburent >>

Appartamenti in affitto >>

Vendita ville San Giacomo di Roburent >>

Case zona Golf >>

Appartamenti in vendita >>

Contatti >>

Chi Siamo >>

Dove Siamo >>

Photogallery >>

Usato Occasioni >>

Alloggi in vendita >>